Because the concave lens forms a virtual image for the real object, it is difficult to measure the object distance and image distance of the concave lens directly. We can only use an inverted real image with the concave lens. As the virtual object of the plane concave lens, the position of the virtual object can be measured. A concave lens can form a real image of an imaginary object, and the position of the real image can be measured.
Here Ecootik will introduce you some methods to measure the focal point of a concave lens.
1. Measure the focal length of a plano concave lens with the conjugate method
(1) Coarse control: close the light fixture on the optical bench and adjust the height around; The optical center is roughly at the same height and on a straight line.
(2) For details, use the conjugate principle to adjust the distance between the object screen and the image screen, and slowly move the concave lens from the object screen to the image screen. If the center of the large image coincides with the center of the small image, the contour coaxial has been adjusted. If the center of the large image is below the center of the small image, it indicates that the position of the concave lens is low, and the position should be adjusted higher; On the contrary, turn down the lens; the left and right are also the same.
(3) Read out the position of the object screen and the position P of the image screen, fill it in the self-made table and calculate it.
(4) Move the concave lens to make a clear magnified inverted real image on the screen, note down the position at this time, and continue to move the planar concave lens to make a clear and reduced inverted real image appear on the screen, write down the position at this time, calculate it. Repeat the above steps five times to obtain a total of four sets of data, calculate the value of each set, and find the average value.
2. Measure the focal length of a plano concave lens by the self-collimation method
(1) Place the slit light source plane mirror on the optical bench, and make the distance between them larger than the focal length of the measured concave lens. Place the concave lens to be measured between the object screen and the plane mirror.
(2) Properly adjust the light path so that the light emitted by the object screen passes through the lens, and then is reflected back by the plane mirror, and then passes through the lens to the object screen again.
(3) On the optical bench, move the plano concave lens back and forth to produce an upside-down, equal-sized, clear real image on the object screen. When the coaxial is good, the object and the image are completely overlapped, and the plane lens is covered with a piece of paper. The image should disappear. Note the position of the plano concave lens on the guide rail. Repeat the steps five times, record the position of the object and the lens, and calculate the average value.
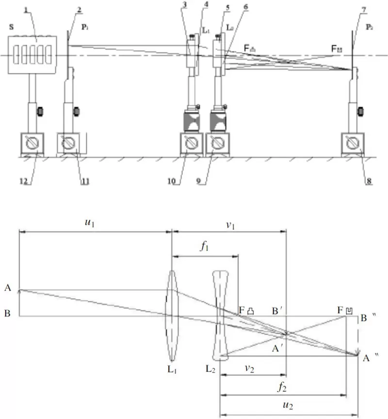
3. Measure the focal length of a plano concave lens by object distance and image distance method

(1) When the object screen P1 illuminated by the surface light source is formed into a clear image on the image screen P2 through the plane convex lens L1, the distance between P1 and P2 is slightly larger than 4 times the focal length of the convex lens. Note the position readings of L1 and P2 on the rail.
(2) Add the thin concave lens L2 to be tested between the convex lens and the image screen, adjust the coaxial, and move the image screen slightly away until a clear image appears on the screen again. Write down the position readings of L2 and P2`.
(3) Using L2P2` distance as the object distance -u, and L2P2 distance as the image distance V`, substitute the value into the formula 1/u+1/v=1/f to calculate the focal length of the measured lens.